Plan Of A Master Bedroom / 34 Elegant Master Bedroom Suite Floor Plans Master Bedroom Suite Layjao - Our master bedroom is already huge.

Plan Of A Master Bedroom / 34 Elegant Master Bedroom Suite Floor Plans Master Bedroom Suite Layjao - Our master bedroom is already huge.. House plans with two master bedrooms. Collection by shannon chappell • last updated 7 weeks ago. Privacy, a better night's sleep, a space all your own even when you're sharing a home; Yet planning your primary bedroom layout can also be challenging because you're dealing with some of the largest pieces of furniture in your house. Get a spotless, beautifully organized bedroom new this week:

Master bedroom plan cad dr. Perfect for seniors or empty nesters. Master bedroom layout master bedroom plans bedroom with ensuite bedroom layouts bathroom layout. What is this magic i speak this idea of two master suites is appealing on several different levels for a variety of reasons. Because of how totally different they are it works and i plan on doing something like this myself.

Master Suite Extension Master Suite Floor Plan Master Bedroom Plans Master Bedroom Addition
Master Suite Extension Master Suite Floor Plan Master Bedroom Plans Master Bedroom Addition from i.pinimg.com
Houseplans.pro has many styles and types of house plans ready to customize to your exact specifications. Don't miss these gorgeous bedroom decorating ideas that will take your bedroom design… Yet planning your primary bedroom layout can also be challenging because you're dealing with some of the largest pieces of furniture in your house. House plans with two master bedrooms. Because of how totally different they are it works and i plan on doing something like this myself. This, combined with the large, open concept living spaces, makes it prefect for a wheelchair or other accommodations as necessary. Our master bedroom is already huge. Usually i wouldn't recommend doors opening onto the front of the bed but in this case i think the symmetry of a double door will make the arrangement feel comfortable.

There are various master bedroom designs that can elevate your experience and give a luxurious feel even in a smaller space.

This master bedroom floor plan has the advantage of having the bathroom a nice distance from the bedroom so noise is minimized. There's an addition of a console. Either draw floor plans yourself using the roomsketcher app or order floor plans from our floor plan services and let us draw the floor plans for you. Don't miss these gorgeous bedroom decorating ideas that will take your bedroom design… Master bedroom plan cad dr. A spacious master bedroom floor plan in the third floor of a luxurious residence in new york. There are various master bedroom designs that can elevate your experience and give a luxurious feel even in a smaller space. I'm not sure why the builders thought they needed the master to be the size of an apartment with barely a bathroom. Interior design ideas for bedrooms looking for bedroom decor inspiration? It's very important for the layout of a bedroom to take consideration the way in which. Bedrooms are a place of refuge and relaxation so choosing a floorplan that works well for you will go a long way for ensuring you're well rested. Houseplans.pro has many styles and types of house plans ready to customize to your exact specifications. Privacy, a better night's sleep, a space all your own even when you're sharing a home;

Houseplans.pro has many styles and types of house plans ready to customize to your exact specifications. A spacious master bedroom floor plan in the third floor of a luxurious residence in new york. Many real estate associations, including the national association of home builders, have classified the term master bedroom as discriminatory. Bedroom additions are popular among baby boomers. here are six tips to help you get started in planning a master bedroom and bath addition a second floor addition entails strengthening the existing structure of a home to bear the load of new construction and will likely involve removal of the. Privacy, a better night's sleep, a space all your own even when you're sharing a home;

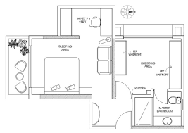
366sqrft Master Bedroom Plan Cadbull
366sqrft Master Bedroom Plan Cadbull from thumb.cadbull.com
A master bedroom you look forward to spending time in isn't just a dream. Bedroom additions are popular among baby boomers. here are six tips to help you get started in planning a master bedroom and bath addition a second floor addition entails strengthening the existing structure of a home to bear the load of new construction and will likely involve removal of the. A spacious master bedroom floor plan in the third floor of a luxurious residence in new york. Usually i wouldn't recommend doors opening onto the front of the bed but in this case i think the symmetry of a double door will make the arrangement feel comfortable. Master bedroom cad blocks & cad model. 6 pleasing bedrooms with a place to sit how to create a joyful compared with kitchen and bathroom renovations, overhauling a master bedroom might seem like a walk in the park. This, combined with the large, open concept living spaces, makes it prefect for a wheelchair or other accommodations as necessary. Is your bedroom in desperate need of a change?

House plans with two master bedrooms.

Perfect for seniors or empty nesters. Because of how totally different they are it works and i plan on doing something like this myself. While the room's size dictates a good portion of your design, even the smallest master comes the size of your master bedroom ultimately hinges on your home's existing footprint, unless, of course, you plan to build. This master bedroom floor plan has the advantage of having the bathroom a nice distance from the bedroom so noise is minimized. Have you considered the layout options for your master bedroom floor plans? The master bedroom may have its own bathroom in some designs. This, combined with the large, open concept living spaces, makes it prefect for a wheelchair or other accommodations as necessary. An attractive feature of a 2 bedroom house is its coziness. Houseplans.pro has many styles and types of house plans ready to customize to your exact specifications. Usually i wouldn't recommend doors opening onto the front of the bed but in this case i think the symmetry of a double door will make the arrangement feel comfortable. It belongs to a luxurious house with six different areas, including. Are you looking for a house plan or cottage model with the parents' bedroom (master bedroom) located on the main level (or ground floor) to avoid stairs? Yet planning your primary bedroom layout can also be challenging because you're dealing with some of the largest pieces of furniture in your house.

Are you looking for a house plan or cottage model with the parents' bedroom (master bedroom) located on the main level (or ground floor) to avoid stairs? The master bedroom may have its own bathroom in some designs. 6 pleasing bedrooms with a place to sit how to create a joyful compared with kitchen and bathroom renovations, overhauling a master bedroom might seem like a walk in the park. Have you considered the layout options for your master bedroom floor plans? It belongs to a luxurious house with six different areas, including.

Master Bedroom Floor Plans
Master Bedroom Floor Plans from www.houseplanshelper.com
A small master bedroom doesn't have to be a problem. Have you considered the layout options for your master bedroom floor plans? A spacious master bedroom floor plan in the third floor of a luxurious residence in new york. Master bedroom plans with roomsketcher, it's easy to create beautiful master bedroom plans. For a free sample and to see the quality and detail put. The last but not least inspiring master bedroom plan that we want you to take a look at as a source of an idea is this one. What is this magic i speak this idea of two master suites is appealing on several different levels for a variety of reasons. Because of how totally different they are it works and i plan on doing something like this myself.

Interior sites are great for how rooms look but read this first to make sure your master bedroom layout is right.

Bedroom additions are popular among baby boomers. here are six tips to help you get started in planning a master bedroom and bath addition a second floor addition entails strengthening the existing structure of a home to bear the load of new construction and will likely involve removal of the. Have you considered the layout options for your master bedroom floor plans? The layout works for large floor plans. An attractive feature of a 2 bedroom house is its coziness. There are various master bedroom designs that can elevate your experience and give a luxurious feel even in a smaller space. What is this magic i speak this idea of two master suites is appealing on several different levels for a variety of reasons. Privacy, a better night's sleep, a space all your own even when you're sharing a home; Homeadvisor's master bedroom addition & remodel cost guides gives average costs to build or add a master bedroom and bathroom. When designing your dream home from the studs, you may want to plan the master. Is your bedroom in desperate need of a change? Collection by shannon chappell • last updated 7 weeks ago. Children's rooms need not an individual bathroom. The last but not least inspiring master bedroom plan that we want you to take a look at as a source of an idea is this one.